1 / 8
Rodinný dům Řečkovice
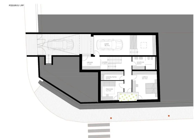
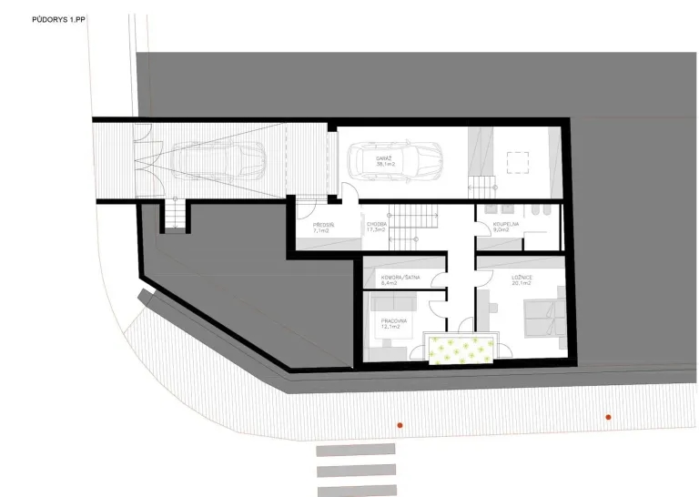
Investor zakoupil atraktivní parcelu pro stavbu RD v Řečkovicích. Nicméně měla pouze 215m2, stávající územní plán omezoval nadzemní podlahovou plochu a během práce na studii správce komunikace postavil před pozemek žulovou opěrnou stěnu. To nás donutilo hledat opravdu dlouho nějaké rozumné řešení. Nakonec se našlo. Výsledkem je plnohodnotný prostorově i vizuálně zajímavý dům. Jeho umístění zároveň neomezilo sousedy a umožňuje na jejich parcelách navázat novou řadovou zástavbou. Realizováno v roce 2021.








